SELLER MOTIVATED. OFFERING TO PAY FIRST YEAR OF HOA FEES AT CLOSING -OR- $8,000 TOWARD BUYER’S CLOSING COSTS.
FULLY FURNISHED, MOVE-IN-READY.
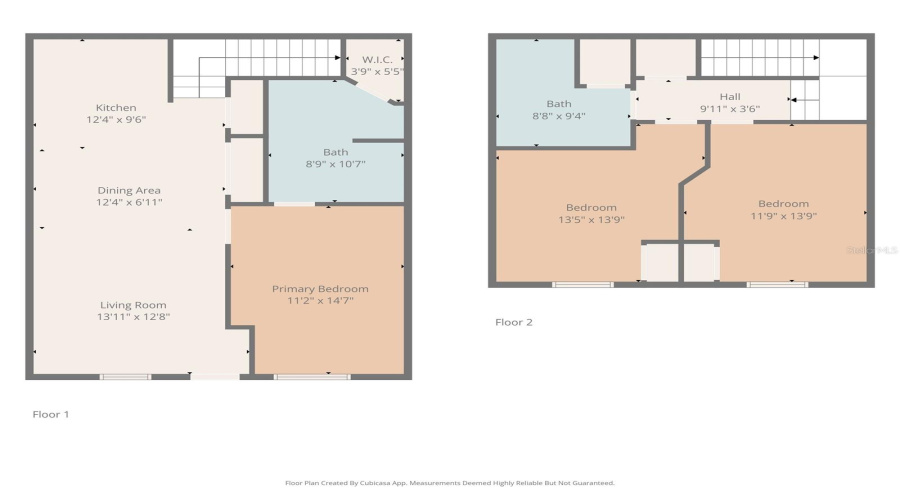
Welcome to this charming, three bedroom, two bath townhome in the RESORT-STYLE community, of West Lucaya Village, located less than 5 miles from DISNEY. Perfectly situated in the heart of Kissimmee, this property offers both convenience and lifestyle. You’ll find yourself close to popular restaurants, shopping and entertainment making every day living and vacation stays effortless. Step inside to a spacious and comfortable layout that blends modern living with low-maintenance ease. Spacious Primary bedroom located on the first floor with a private in-suite bathroom and walk-in closet. Kitchen has GRANITE countertops and STAINLESS STEEL appliances. Beautiful outdoor walkway, with no direct-facing neighbors.
Whether you’re looking for your very own retreat near the magic of Disney or an investment opportunity with short-term rental potential, this Home is ready to meet your needs. Amenities include a POOL, SPA, CLUBHOUSE, FITNESS CENTER, PLAYGROUND, BBQ AREA, and a BARBER SHOP on site. Don’t miss your chance to own a slice of Kissimmee’s paradise. Perfect as a vacation home, investment property, or a comfortable place to call your own. SCHEDULE A SHOWING TODAY!
Request Information
Request more information about this property!
Schedule a Live Virtual Tour
Allow our team to show you around this property virtually from the comfort of your home.
Get the newest and best property listings, hand picked by our experienced real estate team, sent straight to your inbox!
Residential
KISSIMMEE, Florida 34747
Request Information
Request more information about this property!

