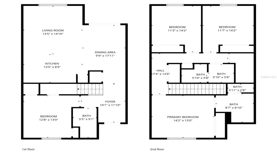
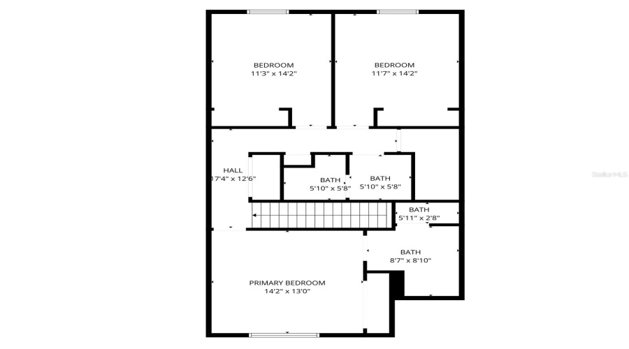
Welcome to this 4-bedroom, 3-bathroom townhome located in the highly desirable Paradise Palms Resort. This property is an excellent opportunity for investors or summer home seeking families. Designed with both comfort and functionality in mind, this home is perfectly suited for families visiting the Disney area or seasonal guests looking for a relaxing Florida getaway. Inside, you’ll find a bright, open-concept layout that connects the living, dining, and kitchen areas, making it easy to host and entertain. The kitchen features stainless steel appliances, granite countertops, and a spacious breakfast bar that adds extra seating and convenience. Upstairs, the themed primary suite offers a fun and relaxing retreat, complete with an ensuite bathroom featuring dual sinks and a tub/shower combination. Additional bedrooms continue the themed experience, creating a memorable stay for guests of all ages. Step outside through the sliding glass doors to your private screened-in patio, where a heated pool, covered seating area, and child safety fence provide the perfect space to unwind after a day at the parks. Located less than 7 miles from Walt Disney World, this property is positioned for strong year-round rental demand. Paradise Palms Resort offers a wide range of amenities, including a resort-style pool, clubhouse with food and beverage options, fitness center, arcade, movie theater, sports courts, and 24-hour gated security. With a convenient first-floor bedroom and bath, this home is both practical and appealing for a wide range of guests. Whether you’re expanding your portfolio or entering the short-term rental market, this property offers a solid, low-maintenance investment in one of Central Florida’s most popular vacation destinations. Don’t wait schedule your private showing today!
Request Information
Request more information about this property!
Schedule a Live Virtual Tour
Allow our team to show you around this property virtually from the comfort of your home.
Get the newest and best property listings, hand picked by our experienced real estate team, sent straight to your inbox!
Residential
KISSIMMEE, Florida 34747
Request Information
Request more information about this property!

