Property Description

Beautiful Lakefront Corner Home in Lake Charles Resort – Resort-Style Living in a Prime Location

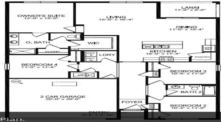
Discover this stunning corner home with lake views, offering the perfect combination of elegance, comfort, and functionality. This property features 4 bedrooms and 2 bathrooms, designed with a modern open-concept layout that enhances natural light and creates inviting living spaces.

The kitchen stands out with 42” cabinets, granite countertops, and ample storage space. The home also includes custom shelving in the laundry room and pantry, adding convenience and organization. Tile flooring throughout the home (except in bedrooms) ensures durability and easy maintenance, while installed blinds provide privacy and comfort.

The primary suite is a true private retreat, featuring a spacious walk-in closet and a spa-like bathroom with walk-in shower, dual vanity, and well-designed layout.

? Enjoy beautiful lake views and the added benefit of a corner lot, providing extra privacy and space.

Located in the resort-style community of Lake Charles, you’ll be close to shopping centers, dining, and essential services, and just minutes away from world-renowned attractions such as Walt Disney World Resort, Universal Studios Florida, and SeaWorld Orlando.

?? rent: $2,400
?? Schedule your showing today!

?? Whether you’re looking for a place to call home or a solid investment opportunity, this property offers exceptional value in one of Florida’s fastest-growing areas.

Location
US
FL
Polk
DAVENPORT
33837
Take I-4 W and leave the freeway at Exit 55 towards to US-27/Clermont/Haines City. Keep right onto US-27, turn right onto Massee Rd, turn left onto Crossfield Rd and turn right onto Eagleview loop.
33837 - Davenport
MLS Addon
AGENT TRUST REALTY CORPORATION

Schedule a Live Virtual Tour

Allow our team to show you around this property virtually from the comfort of your home.

  • This field is hidden when viewing the form
  • This field is for validation purposes and should be left unchanged.

$

5%

1%

5%

$
$

$1421

Monthly Payment

Principal & Interest $1421

Monthly Taxes $1421

Monthly HOA $1421

Monthly Insurance $1421

Get the newest and best property listings, hand picked by our experienced real estate team, sent straight to your inbox!

  • This field is for validation purposes and should be left unchanged.

Reunion Resort Homes For Sale

Similar Properties

Swipe to View More Properties

Residential

DAVENPORT, Florida 33837

4 Bedrooms
2 Bathrooms
1,828 Sqft
$395,000
Listing ID #MFRS5146875
Property Details
Property Type : Residential
Price : $395,000
Bedrooms : 4
Bathrooms : 2
Square Footage : 1,828 Sqft
Year Built : 2023
Listing ID : MFRS5146875