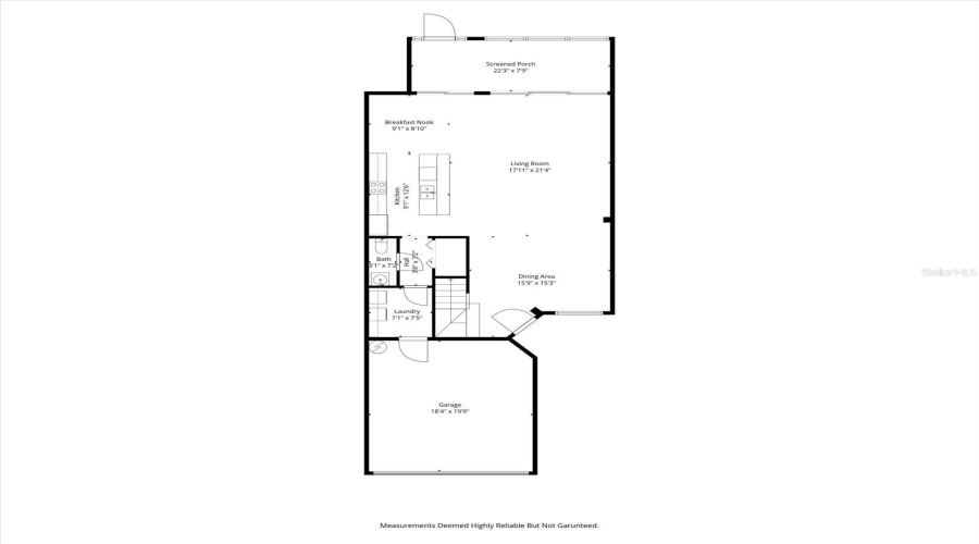
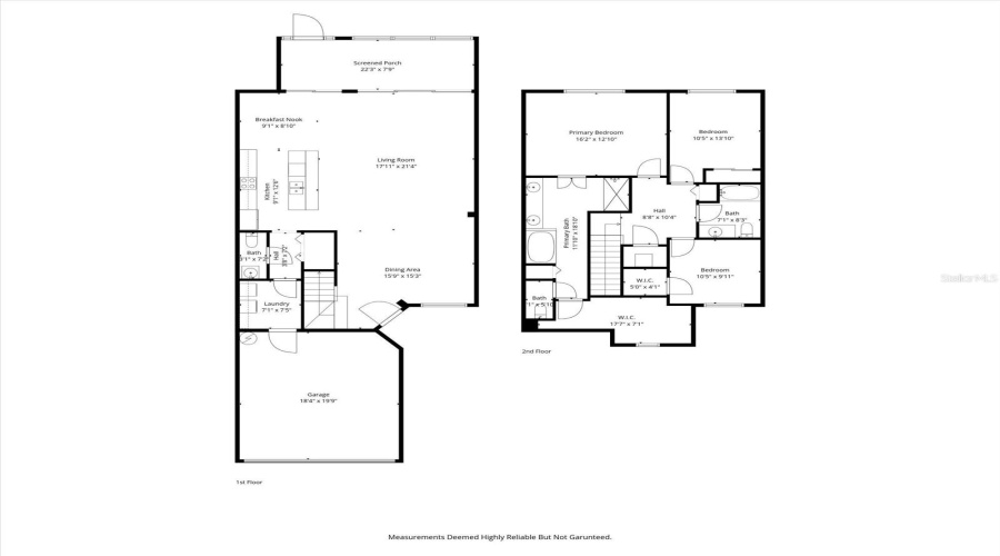
This beautiful, fully furnished, 3-bedroom townhome offers an inviting open floor plan designed for everyday living in the gated community of Bella Trae! The first floor features a spacious living room, dedicated dining area, kitchen nook, and a well-appointed kitchen complete with granite countertops, stainless steel appliances, and an upgraded backsplash. Elegant wainscoting accents the dining area and stairwell, adding a touch of sophistication throughout the main living space.
The living room showcases a stacked sliding glass door that opens fully to your enclosed, oversized lanai — creating seamless indoor-outdoor living. Enjoy peaceful wooded views from this private retreat, complete with upgraded tile flooring and a ceiling fan for year-round comfort.
Convenience continues on the first floor with a guest half bath and a laundry room featuring a full-sized washer and dryer along with additional cabinetry for extra storage.
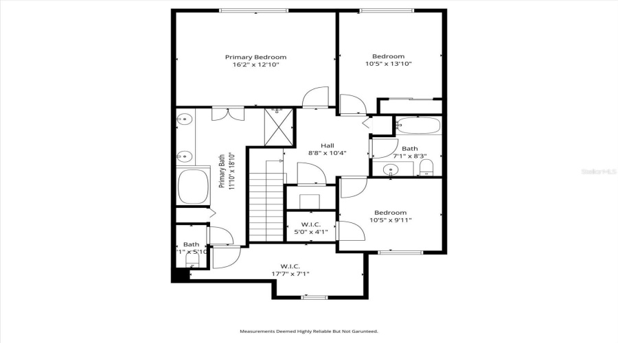
The spacious upstairs primary suite boasts tray ceilings, an oversized closet, and an en-suite bathroom with dual sinks, a walk-in shower, and a separate soaking tub. The two guest bedrooms share a centrally located full bathroom for easy access. Each bedroom is equipped with ceiling fans for added comfort. An attached two-car garage completes the home.
Residents of Bella Trae enjoy low-maintenance living, as HOA dues include lawn care, basic cable and internet, along with access to exceptional resort-style amenities. The community features a zero-entry pool and hot tub, clubhouse, state-of-the-art fitness center, tennis courts, putting green, billiards room, and community grills.
Situated near championship golf courses, popular restaurants, shopping destinations, and world-renowned theme parks, this home offers an unbeatable location for both everyday living and weekend adventures. Whether you’re looking for a primary residence or a seasonal retreat, you’ll appreciate the perfect balance of comfort, convenience, and vibrant Florida lifestyle that this property provides.
Request Information
Request more information about this property!
Schedule a Live Virtual Tour
Allow our team to show you around this property virtually from the comfort of your home.
Get the newest and best property listings, hand picked by our experienced real estate team, sent straight to your inbox!
Residential
DAVENPORT, Florida 33896
Request Information
Request more information about this property!

